1 x Vacancy! | HPS | House| 2 Bed | 2 Bath | OOA | Accessible Parking
There is currently 1 vacancy available for an SDA resident. The home is managed by Better Access and already houses one female resident, creating a welcoming and calm shared environment with 24/7 support via the OOA room.
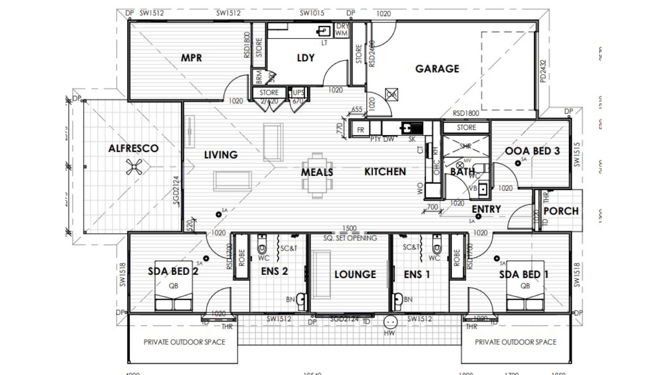
This purpose-built 3-bed, 3-bath High Physical Support home has been designed to support two SDA residents, each with their own private bedroom, ensuite, and direct access to a private outdoor space, promoting both independence and dignity. A third bedroom is allocated for Onsite Overnight Assistance, conveniently located near the entry with access to a shared bathroom. The open-plan kitchen and living areas are centrally positioned for easy flow and connection, while the modern kitchen includes accessible benchtops, a pantry, and fridge recess. A spacious alfresco area extends from the living room, offering a peaceful space for fresh air or socialising. The layout also includes a multi-purpose room, internal-access garage, separate laundry, ample storage, and wide hallways to support mobility throughout the home.
Bus Stop: 850m | Train Station: 1.9km | Shopping Centre: 900m | Medical Centre: 850m | Hospital: 2km
Newtown, located in the heart of Toowoomba, offers a unique blend of historical charm and suburban convenience. This well-established area is known for its tree-lined streets, heritage homes, and welcoming community feel. With excellent access to public transport, shops, medical facilities, and local schools, the home is perfectly positioned for both independence and connection.
Quaint, connected, and rich with character.
Newtown is one of Toowoomba’s most sought-after suburbs for its balance of old-world charm and modern amenities. Residents enjoy peaceful surroundings, spacious parks, and a strong sense of community. Newtown Park and the Queensland State Rose Garden are local highlights, offering green space for relaxation and recreation. With friendly neighbours, beautiful gardens, and a calm, supportive atmosphere, this suburb is ideal for those seeking a quiet yet connected place to call home.
People First. Always. In All Ways.
At Just SDA Management, we lease directly to residents. Giving you complete choice and control over your living environment. We’re here to support you every step of the way with respectful communication, dependable service, and a strong commitment to your dignity, safety, and comfort.
At Just SDA, we understand that the people you live with matter just as much as the home itself.
For properties where residents share, we follow a careful, person-centred screening process focused on compatibility, lifestyle preferences and individual needs. By taking the time to get to know each prospective resident, we help create a safe and welcoming household where everyone feels comfortable, respected and able to thrive.
📧 Enquire now: askus@justsda.com.au

























