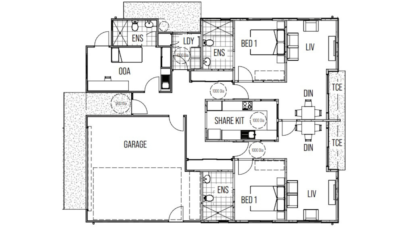
COMING SOON! | Robust | House | 3 Bed | 3 Bath | OOA | Accessible Parking
Bus Stop: m | Train Station: m | Shopping Precinct: km | Medical Centre: km | Hospital: km
Community convenience with space to call your own.
People First. Always. In All Ways.
At Just SDA Management, we lease directly to residents. Giving you complete choice and control over your living environment. We’re here to support you every step of the way with respectful communication, dependable service, and a strong commitment to your dignity, safety, and comfort.
At Just SDA, we understand that the people you live with matter just as much as the home itself.
For properties where residents share, we follow a careful, person-centred screening process focused on compatibility, lifestyle preferences and individual needs. By taking the time to get to know each prospective resident, we help create a safe and welcoming household where everyone feels comfortable, respected and able to thrive.
📧 Enquire now: askus@justsda.com.au

























