Available Now! | HPS | New Build | House| 3 Bed | 3 Bath | OOA | Accessible Parking
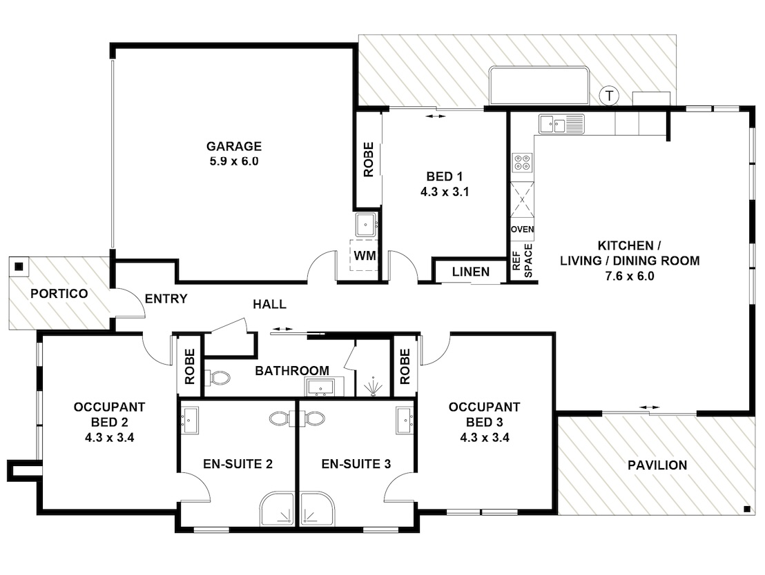
Welcome to this brand-new, purpose-built HPS home in picturesque Redland Bay, QLD. A spacious, mindfully developed residence offering two generously sized SDA bedrooms, each with a private ensuite, plus a third bedroom and ensuite for Onsite Overnight Assistance. With wide doorways, dark timber-finish flooring, and adjustable bench-tops in the kitchen, this home is ideal for comfort, support, and enhancing independence.
The open-plan kitchen, living, and dining area flows seamlessly to a large undercover alfresco and backyard, perfect for entertaining or relaxing in the fresh coastal air. Whether you're creating meals with others, opening your doors to guests, or simply unwinding, this home evolves with you.
Bus Stop: 800m | Train Station: 18.7km | Shopping Centre: 6km | Medical Centre: 4.5km | Hospital: 17.5km
Redland Bay blends coastal serenity with modern convenience. Nestled in a quiet, leafy estate, the home offers a relaxed lifestyle while still being well-connected. You’ll enjoy easy access to nature, cafes, and everyday essentials. Bayside Wake Park is just an 8-minute drive away, and both Cleveland and Beenleigh Train Stations are within a 25-minute drive, making it ideal for staying connected to the broader Brisbane area.
Scenic, spacious, and deeply connected to nature.
Redland Bay is known for its tranquil bayside charm, family-friendly feel, and strong community spirit. Whether you’re exploring local walking tracks, enjoying the coastal views, or simply unwinding in your private alfresco area, this home offers the perfect balance between independence, support, and peace of mind. Multiple scenic parks, waterfront access points, and tranquil bays are all within a 5-minute drive, adding to the lifestyle appeal of this picturesque location.
🤝 Just SDA’s Commitment to Residents
People First. Always. In All Ways.
At Just SDA Management, we lease directly to residents. Giving you complete choice and control over your living environment. We’re here to support you every step of the way with respectful communication, dependable service, and a strong commitment to your dignity, safety, and comfort.
🫶 Tenant Matching (Shared Homes Only)
At Just SDA, we understand that the people you live with matter just as much as the home itself.
For properties where residents share, we follow a careful, person-centred screening process focused on compatibility, lifestyle preferences and individual needs. By taking the time to get to know each prospective resident, we help create a safe and welcoming household where everyone feels comfortable, respected and able to thrive.
📧 Enquire now: askus@justsda.com.au

























