Coming Mid 2026! | HPS | House | 4 Bed | 4 Bath | OOA | Accessible Parking
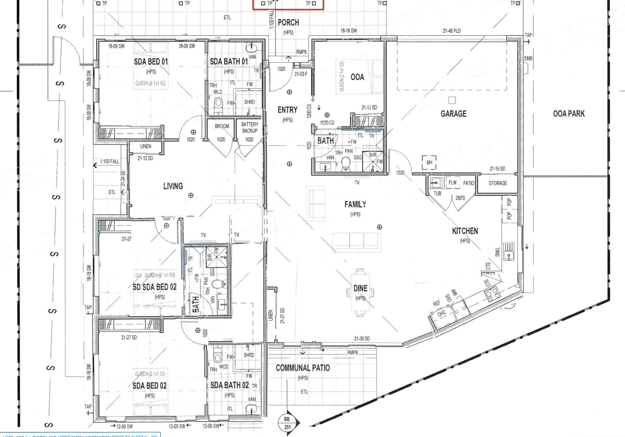
Set to be completed by March 2026, this brand-new High Physical Support (HPS) home has been thoughtfully designed to prioritise comfort, independence, and flexibility for its future residents. Offering three large ensuited bedrooms, a dedicated Onsite Overnight Assistance (OOA) room with its own bathroom and private car space. The versatile third bedroom can be styled as a gym, therapy space, rumpus, or guest room.
The home also features two large living areas, providing ample space for both private relaxation and social connection. An open-plan kitchen, dining, and living zone flows seamlessly out to a covered patio, ideal for indoor-outdoor living. Wide hallways, high ceilings, accessible bathrooms, and future-proofed features like ceiling hoist provisions, adjustable benchtops, and ample storage make this property perfectly suited to meet complex needs without sacrificing style or comfort.
Whether you’re an individual looking for independent living or a small family seeking a spacious, supportive home, this residence offers an exceptional blend of privacy, accessibility, and lifestyle in one of Brisbane’s most well-connected suburbs.
Bus Stop: 250m | Train Station: 600m | Shopping Square: 2km | Medical Centre: 700m | Hospital: 8km | CBD: 20mins!
Located just 600 metres from Boondall Station, this home is positioned for easy transport access across Brisbane and beyond. Taigum Square is only 2km away for your daily shopping needs, and Westfield Chermside and DFO Brisbane are both just 15 minutes from your door. St Joseph’s Nudgee College is a quick 5-minute drive, and Boondall State School, kindergarten, and a dozen other primary and secondary schools sit within a 10-minute radius. Brisbane Airport is only 10 minutes away, and the CBD is reachable in just 20 minutes via the Gateway Motorway.
A Welcoming Space in a Thriving Place
This home offers a peaceful and empowering lifestyle for those seeking a balance between supported living and personal freedom. Its large floorplan, spacious layout, and multiple communal areas make it perfect for people who value both privacy and connection. Surrounded by parks, schools, and everyday conveniences, Boondall provides a true community feel. Residents can enjoy weekend walks through nearby wetlands, concerts at the Entertainment Centre, or relaxed shopping trips to Chermside or DFO.
With its calm, residential vibe and city-meets-nature energy, Boondall is perfect for SDA residents and families who want to enjoy the benefits of a connected, inclusive, and peaceful neighbourhood.
People First. Always. In All Ways.
At Just SDA Management, we lease directly to residents. Giving you complete choice and control over your living environment. We’re here to support you every step of the way with respectful communication, dependable service, and a strong commitment to your dignity, safety, and comfort.
At Just SDA, we understand that the people you live with matter just as much as the home itself.
For properties where residents share, we follow a careful, person-centred screening process focused on compatibility, lifestyle preferences and individual needs. By taking the time to get to know each prospective resident, we help create a safe and welcoming household where everyone feels comfortable, respected and able to thrive.
📧 Enquire now: askus@justsda.com.au

























